Typ zakázky:
Pronájem
Lokalita:
Poděbradská, Praha 9
Plocha:
5945 m2
Evidenční číslo:
961814

BBT PARK PODĚBRADSKÁ (5 945M2 + 471M2 TERASA)

Domů  |  Budovy  |  BBT PARK PODĚBRADSKÁ  |  Nabídka
Martin Vacek

Martin Vacek

+420 776 69 69 33

Podrobné informace

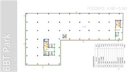
Nabízíme k pronájmu flexibilní kancelářský prostor o výměře 5 945 m² + 471 m² terasa v 1.+3.+4.+5. patře nové budovy na adrese Poděbradská 36. Prostory budou k dispozici od 1.1.2026, budou ve stavu shell and core a budou mít samostatný vstup z ulice (přízemí), přístup 24/7.

Dispozice a vybavení:
- 1.+3.+4.+5.patro
- Vlastní vstup z ulice, vlastní výtah do patra, které je součástí těchto prostor
- Shell and core
- Světlá výška stropů 2,9 m
- Možnost zřízení toalet a kuchyněk v místech dle potřeb nájemce
- Kanceláře/prostory mají otevíratelná okna
- Skladovací prostory v 1.PP
- Kamerový systém monitorující vstupy do budovy, garáže a společné prostory
- Napojení internetu na optické kabely
- V 1.NP možnost pronájmu s možností realizace restaurace a kavárny

Finanční podmínky:
- Nájem: 15 EUR/m² (bez DPH)
- Služby: v ceně nájmu
- Prostory se předávají ve stavu shell and core
- Pouze pro plátce DPH

Parkování:
- Až 38 parkovacích míst v podzemních garážích a další před budovou

Budova a lokalita:
- Moderní kancelářská budova
- Výborná dostupnost MHD
- 50 m tramvajová zastávka Podkovářská
- 1,3 km ke stanici metra Kolbenova
- 1,1 km vlakové nádraží Libeň

Typ nemovitosti:
Komerční
Podtyp nemovitosti:
Kancelářské prostory
Plocha:
5945 m2
Patro:
5. patro
photo_1
Tato nabídka je součástí budovy
BBT PARK PODĚBRADSKÁ
photo_1photo_4photo_5photo_6
X

Nastavení cookies: tato webová stránka používá nezbytné soubory cookie k zajištění správného fungování webu a analytické soubory, abychom pochopili, jak se na stránce pohybujete a jaký obsah Vám máme nabídnout. Tyto cookies budou nastaveny až po vašem schválení.Více informací