Cena:
219 375 Kč / měs
Cena poznámka:
52 500 Kč / měs + DPH
Typ zakázky:
Pronájem
Lokalita:
U průhonu, Praha 7
Plocha:
500 m2
Evidenční číslo:
6705

A7 OFFICE CENTER (500M2)

Domů  |  Budovy  |  A7 OFFICE CENTER  |  Nabídka
Elizabeth Tien

Elizabeth Tien

+420 723 25 25 57

Podrobné informace

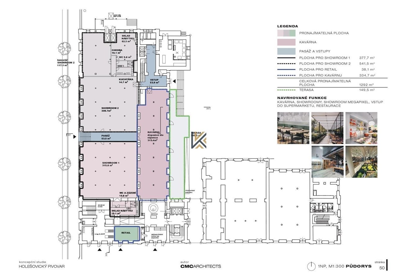
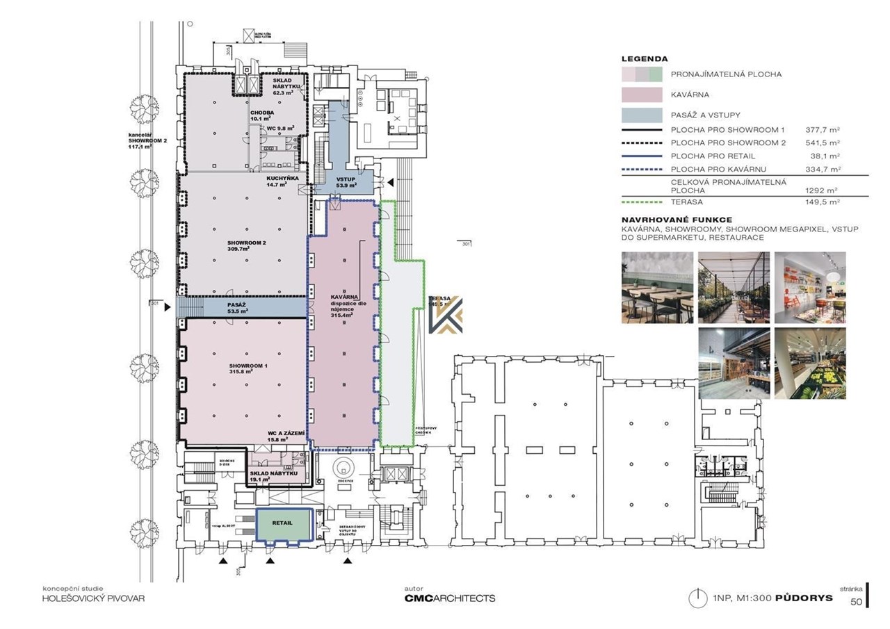
Obchodní prostory o výměře 5001 000 m2 v přízemí.

Typ nemovitosti:
Komerční
Podtyp nemovitosti:
Obchodní prostory
Plocha:
500 m2
Patro:
Přízemí
photo_1
Tato nabídka je součástí budovy
A7 OFFICE CENTER
photo_1photo_2photo_3photo_4photo_5
X

Nastavení cookies: tato webová stránka používá nezbytné soubory cookie k zajištění správného fungování webu a analytické soubory, abychom pochopili, jak se na stránce pohybujete a jaký obsah Vám máme nabídnout. Tyto cookies budou nastaveny až po vašem schválení.Více informací