Cena:
70 873 Kč / měs
Cena poznámka:
22 914 Kč / měs + DPH
Typ zakázky:
Pronájem
Lokalita:
Plynární, Praha 7
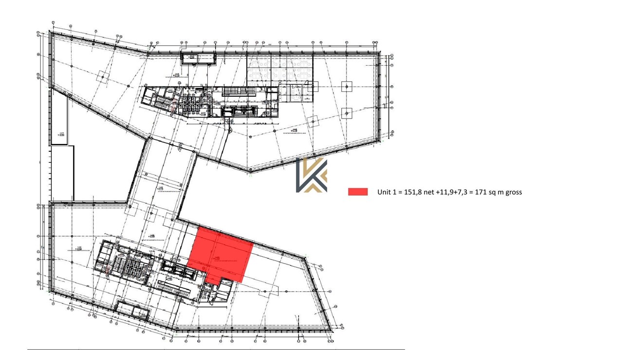
Plocha:
171 m2
Evidenční číslo:
928336

VISIONARY ( 171 m2 )

Domů  |  Budovy  |  VISIONARY  |  Nabídka
Martin Vacek

Martin Vacek

+420 776 69 69 33

Podrobné informace

Pronájem kancelářské jednotky o výměře 171 m2

Typ nemovitosti:
Komerční
Podtyp nemovitosti:
Kancelářské prostory
Plocha:
171 m2
Patro:
3. patro
photo_1
Tato nabídka je součástí budovy
VISIONARY
photo_1photo_2
X

Nastavení cookies: tato webová stránka používá nezbytné soubory cookie k zajištění správného fungování webu a analytické soubory, abychom pochopili, jak se na stránce pohybujete a jaký obsah Vám máme nabídnout. Tyto cookies budou nastaveny až po vašem schválení.Více informací