Cena:
121 678 Kč / měs
Cena poznámka:
35 100 Kč/měs + DPH
Typ zakázky:
Pronájem
Lokalita:
Olbrachtova, Praha 4
Plocha:
270 m2
Evidenční číslo:
979782

THE SQUARE (270 m2)

Domů  |  Budovy  |  THE SQUARE  |  Nabídka
Martin Vacek

Martin Vacek

+420 776 69 69 33

Podrobné informace

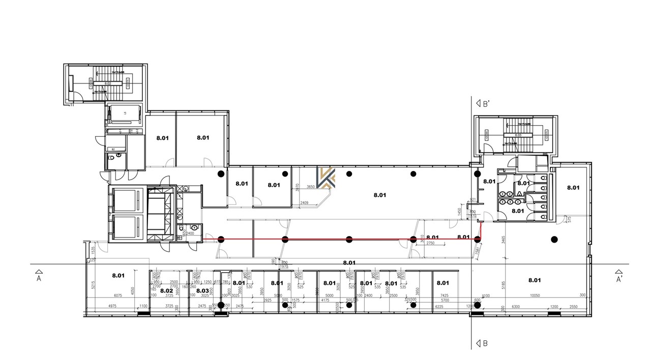
Budova sestává z 17.070 m2 kancelářské plochy třídy A Kancelářské prostory o výměře cca. 270 m2 se nachází v 7. patře budovy.

Typ nemovitosti:
Komerční
Podtyp nemovitosti:
Kancelářské prostory
Plocha:
270 m2
Patro:
7. patro
photo_1
Tato nabídka je součástí budovy
THE SQUARE
photo_1photo_2photo_3photo_4
X

Nastavení cookies: tato webová stránka používá nezbytné soubory cookie k zajištění správného fungování webu a analytické soubory, abychom pochopili, jak se na stránce pohybujete a jaký obsah Vám máme nabídnout. Tyto cookies budou nastaveny až po vašem schválení.Více informací