Cena:
299 667 Kč / měs
Cena poznámka:
80 886 Kč / měs + DPH
Typ zakázky:
Pronájem
Lokalita:
Jihlavská, Praha 4
Plocha:
793 m2
Evidenční číslo:
6467

THE GREENLINE (793 m2 + TERASA)

Domů  |  Budovy  |  THE GREENLINE  |  Nabídka
Martin Vacek

Martin Vacek

+420 776 69 69 33

Podrobné informace

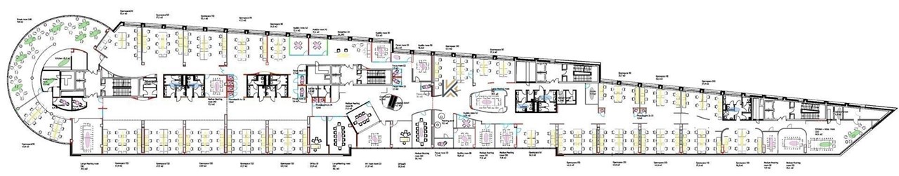
Kanceláře o výměře 793 m2 + terasa jsou umístěné v 6. patře.

Typ nemovitosti:
Komerční
Podtyp nemovitosti:
Kancelářské prostory
Plocha:
793 m2
Patro:
6. patro
photo_1
Tato nabídka je součástí budovy
THE GREENLINE
photo_1photo_2photo_3photo_4
X

Nastavení cookies: tato webová stránka používá nezbytné soubory cookie k zajištění správného fungování webu a analytické soubory, abychom pochopili, jak se na stránce pohybujete a jaký obsah Vám máme nabídnout. Tyto cookies budou nastaveny až po vašem schválení.Více informací