Cena:
251 486 Kč / měs
Cena poznámka:
34 770 Kč / měs + DPH
Typ zakázky:
Pronájem
Lokalita:
Václavské náměstí, Praha 1
Plocha:
366 m2
Evidenční číslo:
7466

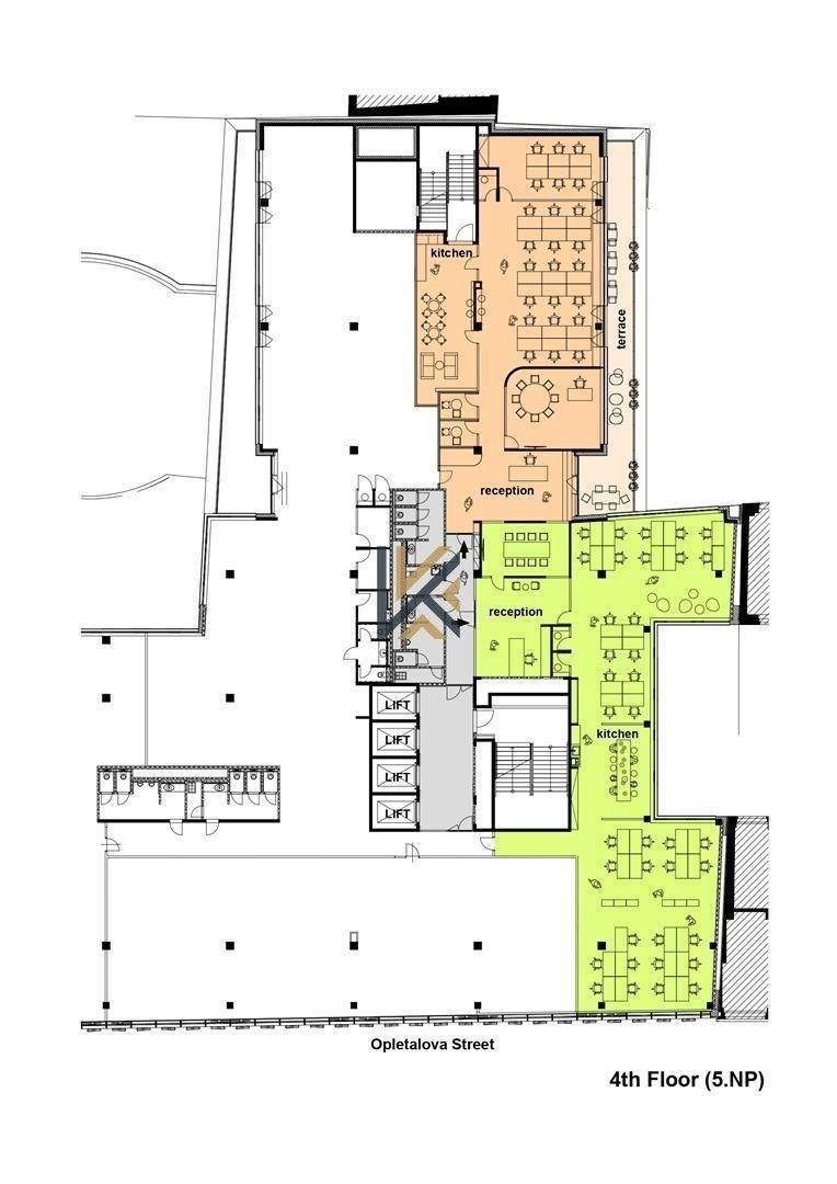
THE FLOW BUILDING (366 m2)

Domů  |  Budovy  |  THE FLOW BUILDING  |  Nabídka
Martin Vacek

Martin Vacek

+420 776 69 69 33

Podrobné informace

Moderní kancelářské prostory 366 m2, k dispozici 4Q/2024.

Typ nemovitosti:
Komerční
Podtyp nemovitosti:
Kancelářské prostory
Plocha:
366 m2
Patro:
4. patro
photo_1
Tato nabídka je součástí budovy
THE FLOW BUILDING
photo_1photo_2photo_3photo_4
X

Nastavení cookies: tato webová stránka používá nezbytné soubory cookie k zajištění správného fungování webu a analytické soubory, abychom pochopili, jak se na stránce pohybujete a jaký obsah Vám máme nabídnout. Tyto cookies budou nastaveny až po vašem schválení.Více informací