Cena:
150 000 Kč / měs
Typ zakázky:
Pronájem
Lokalita:
Poděbradská, Praha 9
Plocha:
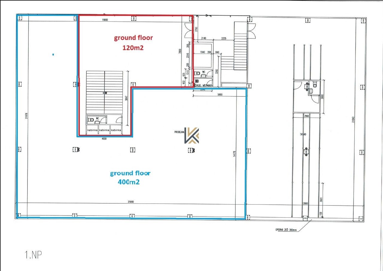
400 m2
Evidenční číslo:
962919

PODĚBRADSKÁ 36 (400 M2)

Domů  |  Budovy  |  PODĚBRADSKÁ 36  |  Nabídka
Elizabeth Tien

Elizabeth Tien

+420 723 25 25 57

Podrobné informace

Nabízíme k pronájmu flexibilní obchodní prostor o výměře 400 m² v přízemí budovy na adrese Poděbradská 36. Prostory budou k dispozici po domluvě, nejdříve od 1.1.2026. Mají samostatný vstup z ulice, přístup 24/7.

Dispozice a vybavení:
Přízemí
Vlastní vstup z ulice
Světlá výška stropů 4 6 m

Finanční podmínky:
Nájem: 15 EUR/m² (bez DPH)
Služby: v ceně nájmu
Pouze pro plátce DPH

Využití:
✓ vhodné: showroom, sklad, zákaznické centrum, eshop, atd.

Parkování:
Až 38 parkovacích míst v podzemních garážích a další před budovou

Typ nemovitosti:
Komerční
Podtyp nemovitosti:
Obchodní prostory
Plocha:
400 m2
Patro:
Přízemí
photo_1
Tato nabídka je součástí budovy
PODĚBRADSKÁ 36
photo_1photo_3photo_5photo_6
X

Nastavení cookies: tato webová stránka používá nezbytné soubory cookie k zajištění správného fungování webu a analytické soubory, abychom pochopili, jak se na stránce pohybujete a jaký obsah Vám máme nabídnout. Tyto cookies budou nastaveny až po vašem schválení.Více informací