Cena:
122 850 Kč / měs
Cena poznámka:
28 840 Kč / měs + DPH
Typ zakázky:
Pronájem
Lokalita:
Siemensova, Praha 13
Plocha:
273 m2
Evidenční číslo:
955027

PATRIA WEST OFFICES (273M2)

Domů  |  Budovy  |  PATRIA WEST OFFICES  |  Nabídka
Elizabeth Tien

Elizabeth Tien

+420 723 25 25 57

Podrobné informace

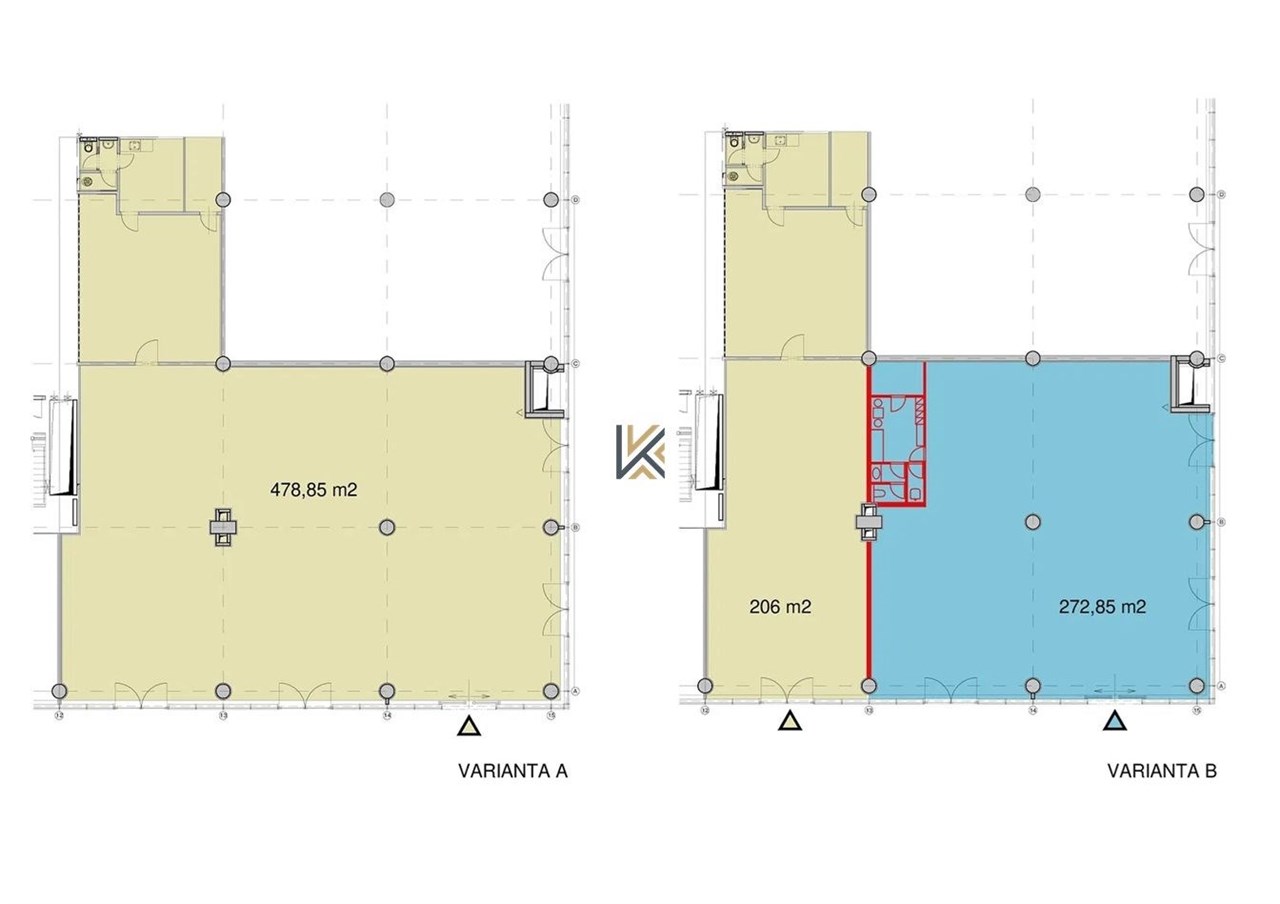
Pronájem obchodních prostor o velikosti 478,85m2, na rohu budovy Siemensova 4, Praha 5. Vzdálenost od metra 1 minutu, jednotka viditelná z hlavní ulice. Vedle je Puzzle Salads a Kolkovna. Prodejna má 478m2 a je možné ji dělit na dvě části 206m2 a 272,85m2. Nájemce musí být plátcem DPH.

Typ nemovitosti:
Komerční
Podtyp nemovitosti:
Obchodní prostory
Plocha:
273 m2
Patro:
Přízemí
photo_1
Tato nabídka je součástí budovy
PATRIA WEST OFFICES
photo_1photo_2photo_3photo_5
X

Nastavení cookies: tato webová stránka používá nezbytné soubory cookie k zajištění správného fungování webu a analytické soubory, abychom pochopili, jak se na stránce pohybujete a jaký obsah Vám máme nabídnout. Tyto cookies budou nastaveny až po vašem schválení.Více informací