Cena:
94 789 Kč / měs
Cena poznámka:
44 955 Kč / měs + DPH
Typ zakázky:
Pronájem
Lokalita:
Lomnického, Praha 4
Plocha:
243 m2
Evidenční číslo:
0782

PANKRÁC PRIME (243 m2)

Domů  |  Budovy  |  PANKRÁC PRIME  |  Nabídka
Martin Vacek

Martin Vacek

+420 776 69 69 33

Podrobné informace

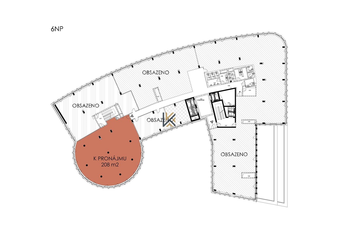
Kancelářské prostory o výměře 243 m2 se nachází v 6.NP.

Typ nemovitosti:
Komerční
Podtyp nemovitosti:
Kancelářské prostory
Plocha:
243 m2
Patro:
5. patro
photo_1
Tato nabídka je součástí budovy
PANKRÁC PRIME
photo_1photo_2photo_3photo_4
X

Nastavení cookies: tato webová stránka používá nezbytné soubory cookie k zajištění správného fungování webu a analytické soubory, abychom pochopili, jak se na stránce pohybujete a jaký obsah Vám máme nabídnout. Tyto cookies budou nastaveny až po vašem schválení.Více informací