Cena:
31 050 Kč / měs
Cena poznámka:
2 990 Kč / měs. + DPH
Typ zakázky:
Pronájem
Lokalita:
Bělehradská, Praha 4
Plocha:
46 m2
Evidenční číslo:
959513

NUSELSKÝ PIVOVAR (46 m2)

Domů  |  Budovy  |  NUSELSKÝ PIVOVAR  |  Nabídka
Elizabeth Tien

Elizabeth Tien

+420 723 25 25 57

Podrobné informace

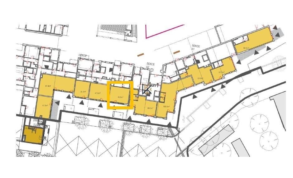
Nabízíme k pronájmu obchodní prostory o velikosti 45,9 m2 v severní části komplexu Nuselský pivovar. Pouze plátci DPH.

Typ nemovitosti:
Komerční
Podtyp nemovitosti:
Obchodní prostory
Plocha:
46 m2
Patro:
Přízemí
photo_1
Tato nabídka je součástí budovy
NUSELSKÝ PIVOVAR
photo_1photo_2photo_3photo_4
X

Nastavení cookies: tato webová stránka používá nezbytné soubory cookie k zajištění správného fungování webu a analytické soubory, abychom pochopili, jak se na stránce pohybujete a jaký obsah Vám máme nabídnout. Tyto cookies budou nastaveny až po vašem schválení.Více informací