Cena:
91 500 Kč / měs
Cena poznámka:
35 000 Kč / měs vč. DPH
Typ zakázky:
Pronájem
Lokalita:
Myslíkova, Praha 1
Plocha:
293 m2
Evidenční číslo:
973835

MYSLÍKOVA 31 (293 m2)

Domů  |  Budovy  |  MYSLÍKOVA 31  |  Nabídka
Martin Vacek

Martin Vacek

+420 776 69 69 33

Podrobné informace

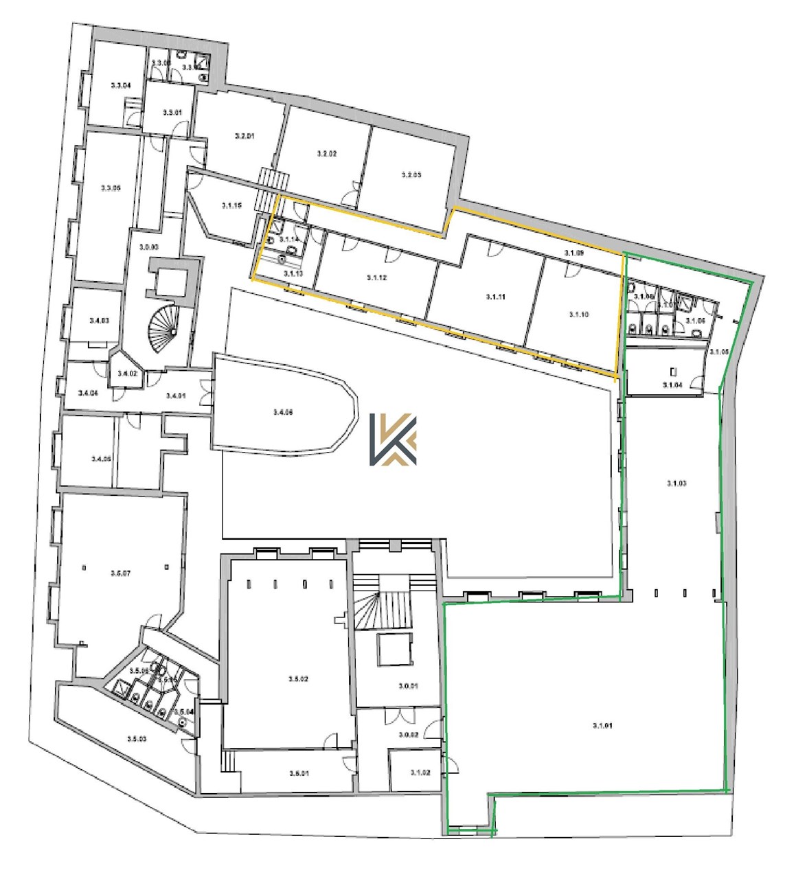
Pronájem prostor o velikosti 293 m2 na plánku provoz 3.1.1 – 3.1.8. a kus z chodby 3.1.9

Typ nemovitosti:
Komerční
Podtyp nemovitosti:
Kancelářské prostory
Plocha:
293 m2
Patro:
3. patro
photo_1
Tato nabídka je součástí budovy
MYSLÍKOVA 31
photo_1photo_2photo_3photo_4photo_5photo_6
X

Nastavení cookies: tato webová stránka používá nezbytné soubory cookie k zajištění správného fungování webu a analytické soubory, abychom pochopili, jak se na stránce pohybujete a jaký obsah Vám máme nabídnout. Tyto cookies budou nastaveny až po vašem schválení.Více informací