Cena:
65 939 Kč / měs
Cena poznámka:
19 575 Kč / měs + DPH
Typ zakázky:
Pronájem
Lokalita:
Pobřežní, Praha 8
Plocha:
135 m2
Evidenční číslo:
6983

INTERNATIONAL BUSINESS CENTER (135 m2)

Domů  |  Budovy  |  INTERNATIONAL BUSINESS CENTER  |  Nabídka
Ing. Petr Hrášek

Ing. Petr Hrášek

+420 736 19 32 32

Podrobné informace

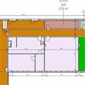
Moderní klimatizované prostory o výměře 135 m2 (jedná se o dvě místnosti vedle sebe na plánku fialová část)

Typ nemovitosti:
Komerční
Podtyp nemovitosti:
Kancelářské prostory
Plocha:
135 m2
Patro:
Přízemí
photo_1
Tato nabídka je součástí budovy
INTERNATIONAL BUSINESS CENTER
photo_1photo_2
X

Nastavení cookies: tato webová stránka používá nezbytné soubory cookie k zajištění správného fungování webu a analytické soubory, abychom pochopili, jak se na stránce pohybujete a jaký obsah Vám máme nabídnout. Tyto cookies budou nastaveny až po vašem schválení.Více informací