Cena poznámka:
na dotaz
Typ zakázky:
Pronájem
Lokalita:
Praha
Plocha:
560 m2
Evidenční číslo:
968023

HADOVKA OFFICE PARK (560 M2)

Domů  |  Budovy  |  HADOVKA OFFICE PARK  |  Nabídka
Elizabeth Tien

Elizabeth Tien

+420 723 25 25 57

Podrobné informace

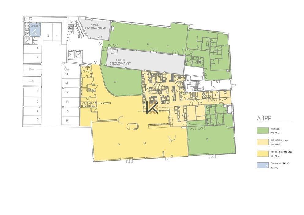
Fitness prostory k pronájmu od 1. 7. 2026

Lokalita: Hadovka Office Park, Evropská 2588/33a; moderní kancelářský komplex v atraktivní části Prahy 6 s výbornou dopravní dostupností (metro Dejvická, tramvaj, bus).

2 oddělené fitness plochy:
Velký sál vhodný pro skupinová cvičení, jógu, kruhové tréninky nebo workshopy
Fitness sál se stroji a kardio vybavením
+ Součástí pronájmu je také sauna

Celková čistá plocha: 540 m2
Celková pronajímatelná plocha: 560 m²

Možnost úprav prostor podle potřeb nájemce s kontribucí pronajímatele

• Nájemné: pronajímatel očekává předložení nabídky ze strany zájemce

• náklady:
15.000 Kč záloha/měsíc (topení, voda, drobné opravy…)
privátní spotřeba elektřiny v průměru cca 19.000 Kč / měsíc
+ cca 854 Kč společná elektřina (podíl na spotřebě budovy)
privátní spotřeba studené vody: 293m3 /rok 2024
provátní spotřeba teplé vody: 255m3 /rok 2024

• Parkování: max. 4 místa v rámci podzemního vyhrazeného parkoviště (90 EUR/místo/měsíc + zálohy 360 Kč/místo/měsíc + DPH);
v přímém okolí budovy je možnost parkování „na ulici“
• Provozovatel fitness má vlastní recepční a externí úklidovou firmu
• Prostory je možné propagovat a zviditelnit pouze na některých oknech fitness prostor formou vnitřních polepů; na budovu zle umístit logo provozovatele.

Typ nemovitosti:
Komerční
Podtyp nemovitosti:
Obchodní prostory
Plocha:
560 m2
Patro:
Přízemí
photo_1
Tato nabídka je součástí budovy
HADOVKA OFFICE PARK
photo_1photo_2photo_3photo_4
X

Nastavení cookies: tato webová stránka používá nezbytné soubory cookie k zajištění správného fungování webu a analytické soubory, abychom pochopili, jak se na stránce pohybujete a jaký obsah Vám máme nabídnout. Tyto cookies budou nastaveny až po vašem schválení.Více informací