Cena:
407 682 Kč / měs
Cena poznámka:
167 220 Kč / měs + DPH
Typ zakázky:
Pronájem
Lokalita:
Pikrtova, Praha 4
Plocha:
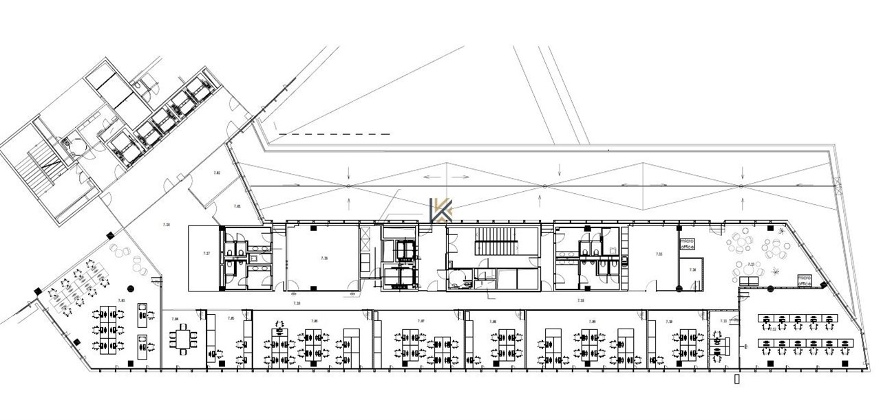
929 m2
Evidenční číslo:
6077

ENTERPRISE OFFICE CENTER

Domů  |  Budovy  |  ENTERPRISE OFFICE CENTER  |  Nabídka
Martin Vacek

Martin Vacek

+420 776 69 69 33

Podrobné informace

Moderní kancelářské prostory s vlastní terasou 300 m2.

Typ nemovitosti:
Komerční
Podtyp nemovitosti:
Kancelářské prostory
Plocha:
929 m2
Patro:
6. patro
photo_1
Tato nabídka je součástí budovy
ENTERPRISE OFFICE CENTER
photo_1photo_2photo_3photo_4
X

Nastavení cookies: tato webová stránka používá nezbytné soubory cookie k zajištění správného fungování webu a analytické soubory, abychom pochopili, jak se na stránce pohybujete a jaký obsah Vám máme nabídnout. Tyto cookies budou nastaveny až po vašem schválení.Více informací