DVORANA OFFICE CENTER

Plně obsazeno
Domů  |  Budovy  |  DVORANA OFFICE CENTER
Martin Vacek

Martin Vacek

+420 776 69 69 33

Typ:
Komerční
Lokalita:
Pod pekárnami 878/2, Praha 9
Nájem:
250 - 295 Kč/m²/měs.

Podrobné informace

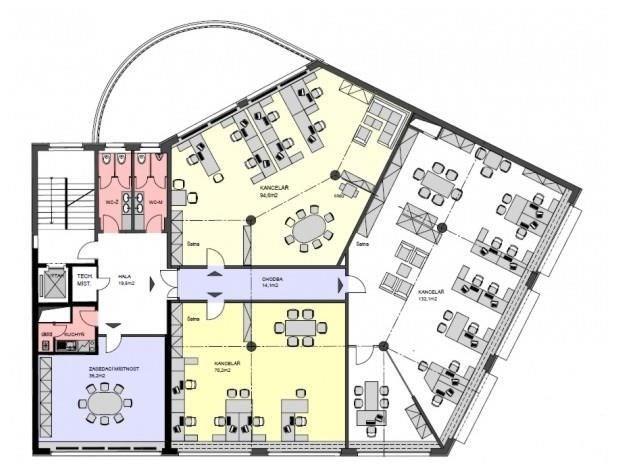
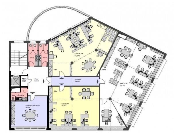
Administrativní budova Dvorana Office Center nabízí kvalitní kancelářské prostory na 6. podlažích, přičemž velikost typického patra je cca 390m2. V případě zájmu je zde možnost rozdělení na dvě samostatné jednotky, přičemž vnitřní dispozice může být řešena formou open planu či jednotlivých kanceláří. Budova umožní parking až pro 27 vozidel v rámci podzemních kanceláří plus snadné parkování i v okolí budovy. Další výhodou objektu je možnost umístění velkého poutače na budovu, bude-li se jednat o majoritního nájemce a využití vnitrobloku s útulnou zahrádkou. V těsné blízkosti nákupního centra Fénix a cca 2 minuty chůze od stanice metra (B) Vysočanská. Dále objekt je velice dobře přístupný i několika tramvajovými linkami, autobusy i vlakem. Okolí nabízí kompletní občanskou vybavenost a bezproblémové možnosti parkování.

Nájem:
250 - 295 Kč/m²/měs.
Služby:
85 Kč/m²/měs.
Parkování:
2 500 Kč/měs.
(Ceny jsou uvedeny bez DPH)
Klimatizace
Recepce v budově
Přístup 24/7
Ostraha
Lobby
Výtah
Parkování v budově
Umístění sídla
Dopravní dostupnost
MHD
PENB
C

Aktuálně volné prostory

photo_2photo_3photo_4photo_5
X

Nastavení cookies: tato webová stránka používá nezbytné soubory cookie k zajištění správného fungování webu a analytické soubory, abychom pochopili, jak se na stránce pohybujete a jaký obsah Vám máme nabídnout. Tyto cookies budou nastaveny až po vašem schválení.Více informací