Cena:
99 191 Kč / měs
Cena poznámka:
34 650 Kč / měs + DPH
Typ zakázky:
Pronájem
Lokalita:
Jankovcova, Praha 7
Plocha:
231 m2
Evidenční číslo:
964054

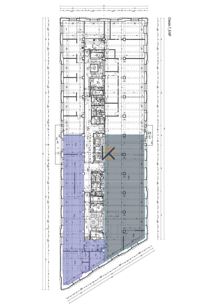
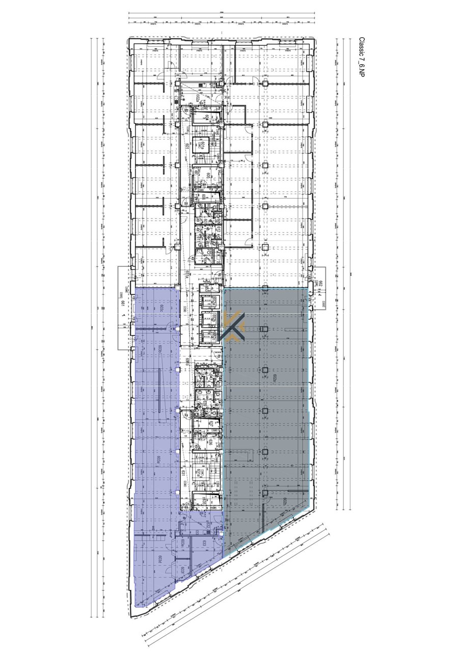
CLASSIC 7 BUSINESS PARK (241 m2)

Domů  |  Budovy  |  CLASSIC 7 BUSINESS PARK  |  Nabídka
Martin Vacek

Martin Vacek

+420 776 69 69 33

Podrobné informace

Kancelářské prostory s možností variabilního uspořádání dle přání klienta umístěné o výměře 241 m2 (v plánku modrá část) jednotka je v budově C.

Typ nemovitosti:
Komerční
Podtyp nemovitosti:
Kancelářské prostory
Plocha:
231 m2
Patro:
5. patro
photo_1
Tato nabídka je součástí budovy
CLASSIC 7 BUSINESS PARK
photo_1photo_2photo_3photo_4
X

Nastavení cookies: tato webová stránka používá nezbytné soubory cookie k zajištění správného fungování webu a analytické soubory, abychom pochopili, jak se na stránce pohybujete a jaký obsah Vám máme nabídnout. Tyto cookies budou nastaveny až po vašem schválení.Více informací