Cena:
29 750 Kč / měs
Cena poznámka:
15 470 Kč / měs + DPH
Typ zakázky:
Pronájem
Lokalita:
Radlická, Praha 5
Plocha:
85 m2
Evidenční číslo:
969020

BUTOVICE OFFICES 85) m2)

Domů  |  Budovy  |  BUTOVICE OFFICES  |  Nabídka
Martin Vacek

Martin Vacek

+420 776 69 69 33

Podrobné informace

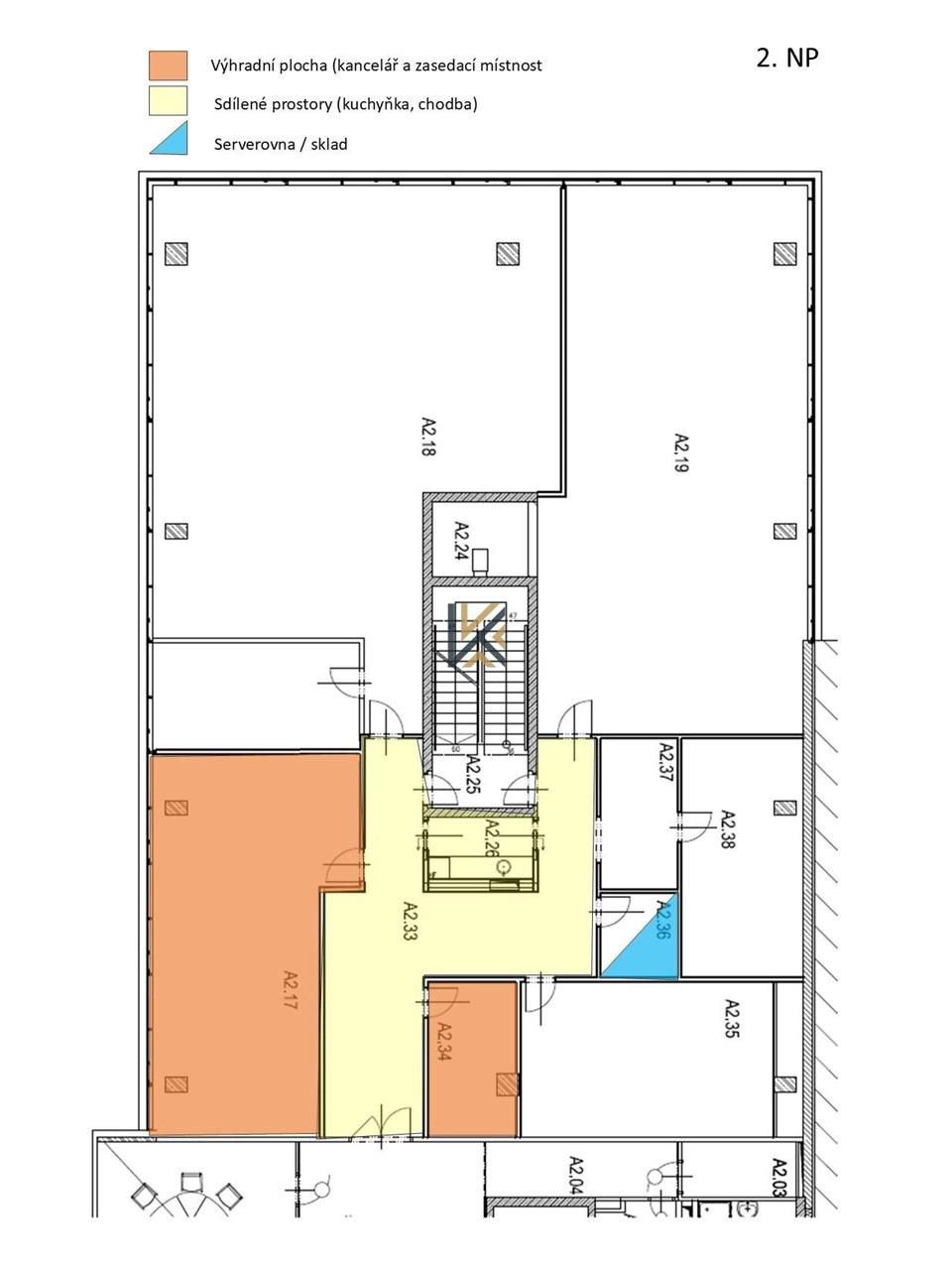
Kanceláře 85 m2 v 1. patře budovy.

Typ nemovitosti:
Komerční
Podtyp nemovitosti:
Kancelářské prostory
Plocha:
85 m2
Patro:
1. patro
photo_1
Tato nabídka je součástí budovy
BUTOVICE OFFICES
photo_1photo_2
X

Nastavení cookies: tato webová stránka používá nezbytné soubory cookie k zajištění správného fungování webu a analytické soubory, abychom pochopili, jak se na stránce pohybujete a jaký obsah Vám máme nabídnout. Tyto cookies budou nastaveny až po vašem schválení.Více informací