Cena:
223 500 Kč / měs
Cena poznámka:
89 500 CZK / měs + DPH
Typ zakázky:
Pronájem
Lokalita:
Nádražní, Praha 5
Plocha:
596 m2
Evidenční číslo:
939207

BUSINESS CENTRUM SMÍCHOV

Domů  |  Budovy  |  BUSINESS CENTRUM SMÍCHOV  |  Nabídka
Martin Vacek

Martin Vacek

+420 776 69 69 33

Podrobné informace

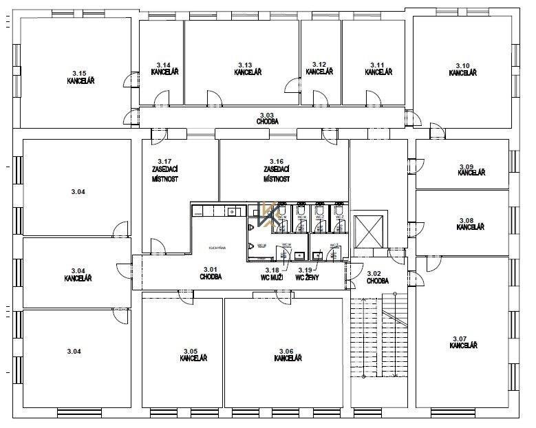
Nabízíme k pronájmu kanceláře o výměře 596m2 (celé patro) v administrativní budově Business Centrum Smíchov v ul. Nádražní, Praha 5 Smíchov.

Budova prošla kompletní rekonstrukcí (podhledy, světla, koberce, dlažba, kuchyňky vč. spotřebičů, toalety, dveře, vstupní recepce). Možnost parkování přímo u budovy. Centrální recepce, neomezený přístup 24/7, kolárna, sprcha, střešní terasa 90m², klimatizace.

Typ nemovitosti:
Komerční
Podtyp nemovitosti:
Kancelářské prostory
Plocha:
596 m2
Patro:
2. patro
photo_1
Tato nabídka je součástí budovy
BUSINESS CENTRUM SMÍCHOV
photo_1photo_2photo_3photo_4
X

Nastavení cookies: tato webová stránka používá nezbytné soubory cookie k zajištění správného fungování webu a analytické soubory, abychom pochopili, jak se na stránce pohybujete a jaký obsah Vám máme nabídnout. Tyto cookies budou nastaveny až po vašem schválení.Více informací