Cena:
631 950 Kč / měs
Cena poznámka:
255 750 Kč / měs + DPH
Typ zakázky:
Pronájem
Lokalita:
Bubenská, Praha 7
Plocha:
1650 m2
Evidenční číslo:
4385

BUBENSKÁ 1 (1 650 m2)

Domů  |  Budovy  |  BUBENSKÁ  |  Nabídka
Elizabeth Tien

Elizabeth Tien

+420 723 25 25 57

Podrobné informace

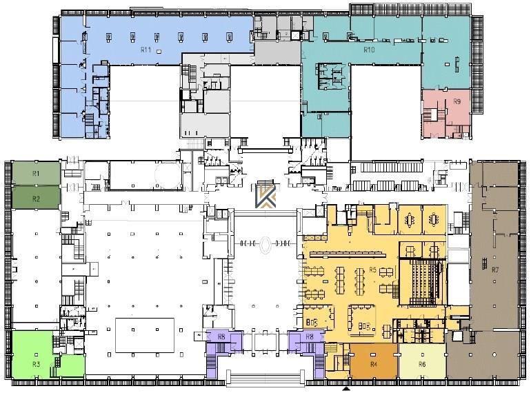
Moderní obchodní prostory v přízemí budovy o výměře 1 650 m2 s možností úprav dle přání klienta. Ve stavu hrubá stavba k dispozici k úpravám.
Vhodné jako showroom, obchod, kancelář, galerie, cowork. Na plánku jednotka R5.

Typ nemovitosti:
Komerční
Podtyp nemovitosti:
Obchodní prostory
Plocha:
1650 m2
Patro:
Přízemí
photo_1
Tato nabídka je součástí budovy
BUBENSKÁ
photo_1photo_2photo_3photo_4photo_5
X

Nastavení cookies: tato webová stránka používá nezbytné soubory cookie k zajištění správného fungování webu a analytické soubory, abychom pochopili, jak se na stránce pohybujete a jaký obsah Vám máme nabídnout. Tyto cookies budou nastaveny až po vašem schválení.Více informací